QE雙小車橋式起重機
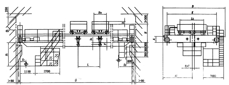
?是在QD型橋式起重機的基礎上,將單小車改為雙小車,可單鉤獨立或雙鉤同時吊運物件,主要由橋架、大車運行機構、小車、電器設備等組成。
- 型號: QE型
- 品牌: 恒立源
- 跨度: 可定制
- 起重量: 可定制
- 起升高度: 可定制
- 工作級別: A3~A6
關閉
產品咨詢
客服熱線:400-700-9997

